Geagte Aandeelhouers en Inwoners,
GRONDGEBRUIKAANSOEKE VIR OPENBARE KOMMENTAAR
Opsomming : Daar is twee grondgebruikaansoeke waarop openbare kommentaar gelewer kan word tussen vandag en 27 Februarie 2025.
U word genooi om die volgende aansoeke (met voorlopige voorwaardes) by die Dorpskantoor te besigtig en, waar nodig, kommentaar te lewer:
1. VOORGESTELDE KONSOLIDASIE EN HERSONERING VANAF WOONSONE 1 NA LANDBOUSONE 1 BY AANDEELBLOKKE H184, H053, H171, H172, H173 EN H174, ORANIA, NOORD-KAAP
Grondeienaar: Mnr S.A. ROETS
Adres: AMARILSTRAAT H053 , ORANIA
Aansoek ingedien deur: MVD KALAHARI


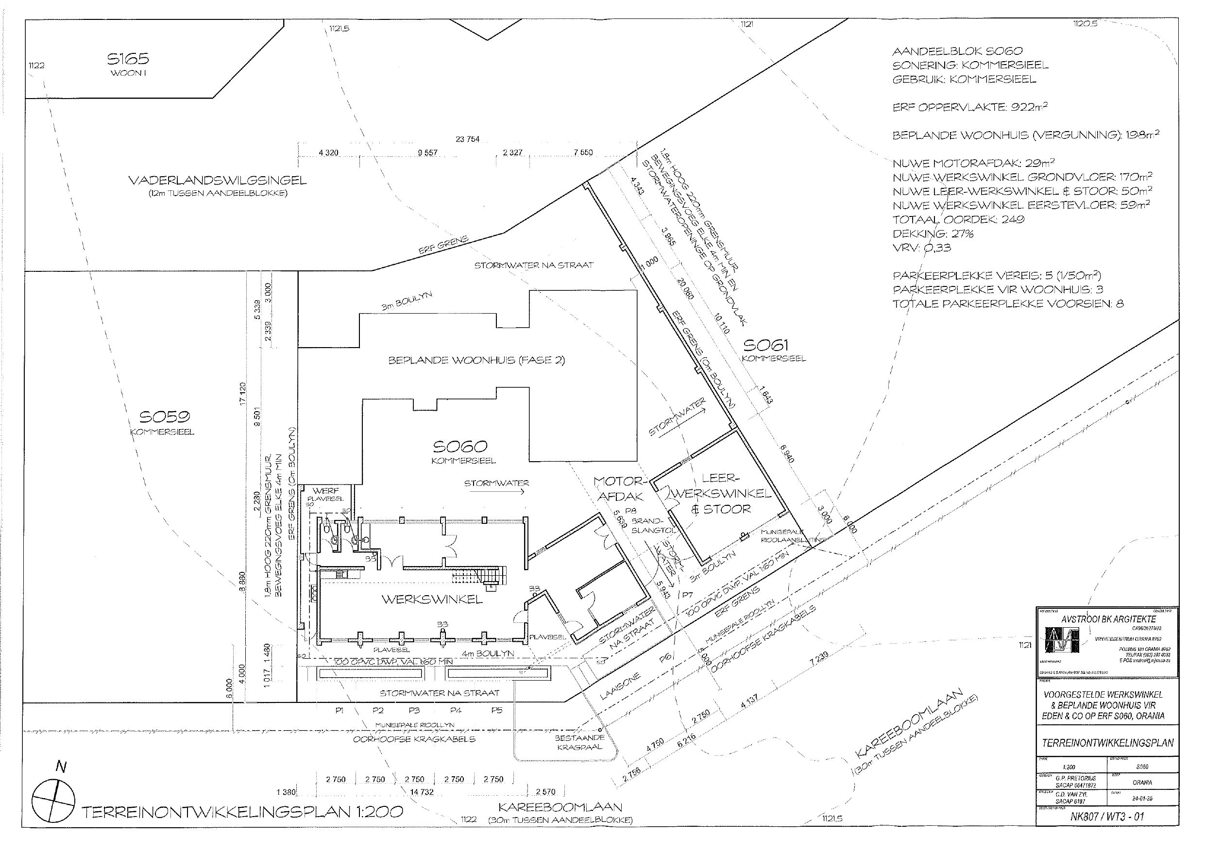
2. VOORGESTELDE VERGUNNING VIR ‘N WOONEENHEID BY AANDEELBLOK S060, ORANIA, NOORD-KAAP
Grondeienaar: EDEN & CO (EDMS) BPK, MNR C.H. BASSON
Adres: KAREEBOOMLAAN S060, ORANIA
Aansoek ingedien deur: AVSTROOI ARGITEKTE

**BESIGTIGINGSDATUMS**
Die geskrewe aansoeke kan tydens kantoorure (08:00 tot 16:00) by die dorpskantoor besigtig word tussen Donderdag 6 Februarie 2025 en Donderdag 27 Februarie 2025.
Skriftelike kommentaar moet voor Donderdag 27 Febuarie 2025 by die Dorpskantoor ingedien word.
Navrae kan aan Cobus Pretorius gerig word by die Dorpskantoor, maar u is ook, soos altyd, welkom om in kontak met die dorpsraad te tree oor enige onderwerp, deur van die volgende skakel gebruik te maak:
Vriendelike groete,
Cobus Pretorius
Hoof : Beplanning en Grondgebruik
Opkomende inskrywings…
Vir meer kennisgewing inskrywings, gaan na…
Besoek ons kaart om verkeie plekke in Orania te vind…
Druk op nie nommer om te skakel…
Vir meer skakelnommers, gaan na…
Opkomende inskrywings…
Vir meer Nuusbrief inskrywings, gaan na…
Druk op nie nommer om te skakel…
Vir meer skakelnommers, gaan na…
Opkomende inskrywings…
Vir meer kalender inskrywings, gaan na…