227/2025

GRONDGEBRUIKAANSOEKE VIR OPENBARE KOMMENTAAR

Uitgereik op: 4 December 2025
Beplanning en Grondgebruik

0

GRONDGEBRUIKAANSOEKE VIR OPENBARE KOMMENTAAR

227/2025
4 Desember 2025
Geagte Oraniërs,
GRONDGEBRUIKAANSOEKE VIR OPENBARE KOMMENTAAR
Opsomming : Daar is ‘n grondgebruikaansoek (grensverskuiwing) waarop openbare kommentaar gelewer kan word tussen vandag en Donderdag, 8 Januarie 2026.
U word genooi om die volgende aansoek (met voorlopige voorwaardes) by die Dorpskantoor te besigtig en, waar nodig, kommentaar te lewer:
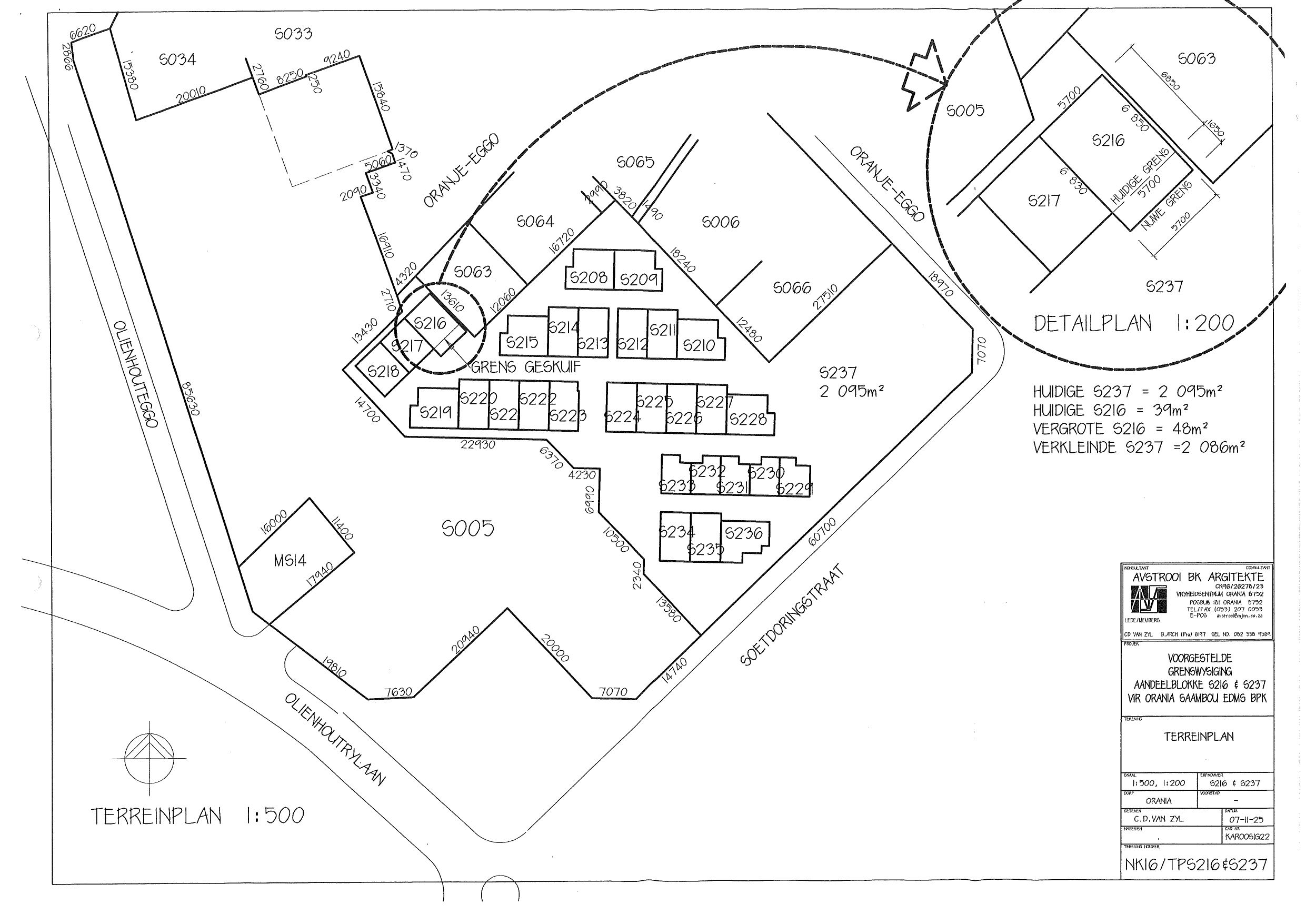
1. VOORGESTELDE GRENSVERSKUIWING TUSSEN AANDEELBLOKKE S216 EN S237, ORANIA, NOORD-KAAP
Grondeienaar: KAROOSIG AFTREEOORD MSW (MNR. P. FOURIE)
Adres: ORANJE-EGGO S237, ORANIA
Aansoek ingedien deur: AVSTROOI ARGITEKTE BK (MNR. C.D VAN ZYL)
**BESIGTIGINGSDATUMS**
Die geskrewe aansoek kan tydens kantoorure (08:00 tot 16:00) by die dorpskantoor besigtig word tussen Donderdag 4 Desember 2025 en Donderdag 8 Januarie 2026, en skriftelike kommentaar moet voor of op Donderdag 8 Januarie 2025 by die dorpskantoor ingedien word.
Navrae kan aan Cobus Pretorius gerig word by die Dorpskantoor.
Vriendelike groete,
Cobus Pretorius
Hoof : Beplanning en Grondgebruik
Inwoners kan, soos altyd, die Dorpsraad kontak deur die volgende skakel te gebruik: 🔗 https://myorania.co.za/kontak-ons/
Indien u dit anoniem wil doen, kan u ‘n opmerking plaas in die Anonieme Forum op ons webwerf: 🔗 https://myorania.co.za/anonieme-voorstelle-opmerkings-of-klagtes/

Filters

Kennisgewings Date Rage Filter
Kennisgewings Type Checkbox Filter
Vloedrisikovlakke
Vloedrisikovlakke

Die bogenoemde vloedrisikovlakke word as aanduiders van gevaar gebruik:
Vlak GROEN: normale riviervlakke
Vlak GEEL: dreigende gevaar, wees paraat (geen toegang tot die rivier)
Vlak ORANJE: beveilig eiendom en verwyder waardevolle items en diere in geïdentifiseerde gebiede (verhoogde paraatheid)
Vlak ROOI: alle persone in geïdentifiseerde gebiede ontruim teen ʼn aangekondigde tyd

Korporatief

Dokumente Korporatief Filter

Finansies

Dokumente Finansies Filter

Grongebruik

Dokumente Grondgebruik Filter

Dorpsreëls

Dorpsreëls

Kennisgewings

Opkomende inskrywings…

046/2026
(Uitgereik op: 16 April, 2026)
Inligting en Skakeling
045/2026
(Uitgereik op: 16 April, 2026)
Ingenieursdiente
044/2026
(Uitgereik op: 15 April, 2026)
Ingenieursdiente

Vir meer kennisgewing inskrywings, gaan na…

Orania Kaart

Besoek ons kaart om verkeie plekke in Orania te vind…

Algemene Skakels

Druk op nie nommer om te skakel…

Orania Veiligheids Dienste

Orania Beweging

OVD Watervleuel

Regspleging

Orania Ontwikkelingsmaatskappy

OSK

OSK Koöperatiewe Bank

Orania Sakekaner

Radio Orania

Vir meer skakelnommers, gaan na…

Nuusbriewe

Opkomende inskrywings…

01/2024
(Uitgereik op: 2 May, 2024)

2

Vir meer Nuusbrief inskrywings, gaan na…

Noodnommers

Druk op nie nommer om te skakel…

Orania Veiligheids Dienste

Orania Hospitaal

Huis Dokter

Orania Ambulaans

Elektrisien

Loodgieter

Vir meer skakelnommers, gaan na…

Kalender

Opkomende inskrywings…

15
May
Friday 15 May, 2026
- 16 May, 2026
Algemeen
12
Jun
Friday 12 June, 2026
- 13 June, 2026
5:00 pm
25
Jun
Thursday 25 June, 2026
- 27 June, 2026
8:00 am
25
Jun
Thursday 25 June, 2026
- 27 June, 2026
8:00 am
25
Jul
Saturday 25 July, 2026
- 25 July, 2026
7:00 am

Vir meer kalender inskrywings, gaan na…